Veuillez activer le javascript sur cette page
bg

ENTREPôT BUREAUX / 797m2 - A louer

Caractéristiques du bien

À LOUER – Entrepôt avec bureaux – Villeneuve-la-Garenne

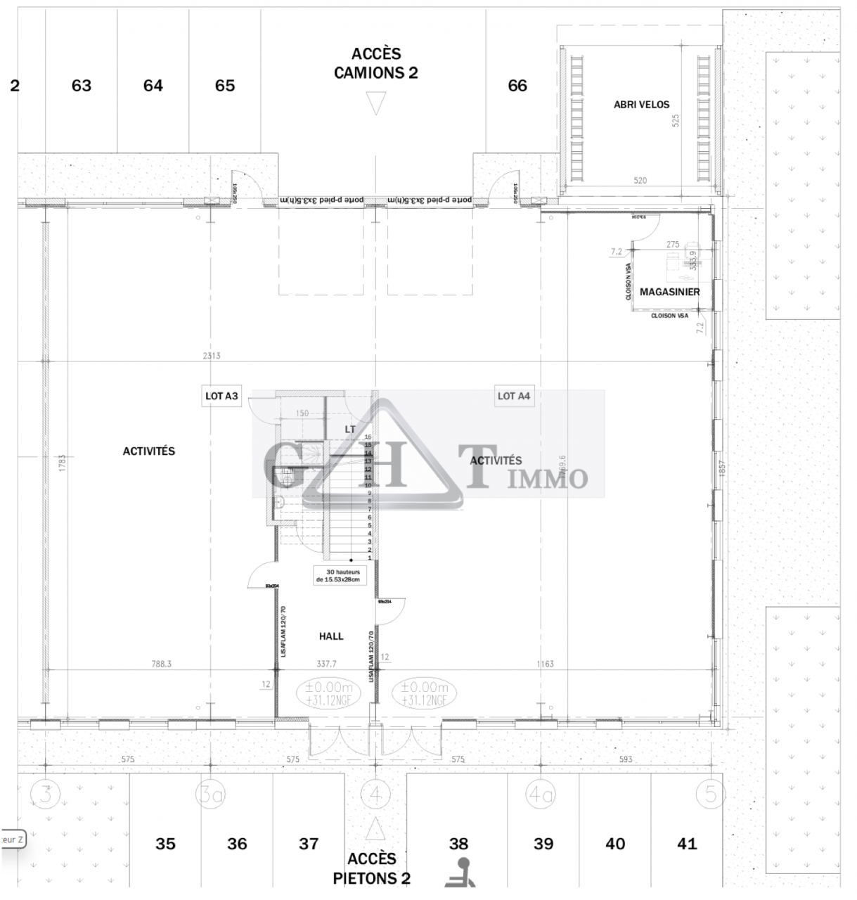
Le cabinet GHTMO vous propose : À la location, un entrepôt avec bureaux situé à Villeneuve-la-Garenne (92390). D’une surface totale de 797 m², le bien se compose de : 368 m² d’activité au rez-de-chaussée, 40 m² de bureaux au rez-de-chaussée, 389 m² de bureaux en R+1. Hauteur libre : 4,00 m Site clos avec contrôle d’accès par portails. Accès semi-remorques – excellente accessibilité via A86, A15 et N315

  • Type : Entrepôt Bureaux
  • Ville : Gennevilliers 92230
  • Surface : 797 m2

Informations financières

  • Loyer HT/HC : 11 290€/ mois
  • Charges : -/ mois
  • Dépôt de garantie : 33 870€
  • Répartition honoraires : Locataire
  • Montant honoraires HT : 40 644€
Entrepôt Bureaux
Entrepôt Bureaux
Entrepôt Bureaux
Entrepôt Bureaux
Entrepôt Bureaux
Entrepôt Bureaux
bg

Vous êtes intéressé(é) par ce bien ?
N'hésitez pas à nous contacter afin...

Répartition de
la surface sur ce bien

rdc Stockage 368 m²
rdc Bureau 40 m²
r+1 Bureau 389 m²

Surface total

797m²

Surface par type

Localisation